Tổng quan phân khu Châu Mỹ – Vinhomes Global Gate Hạ Long
Phân khu Châu Mỹ nằm trong một trong năm phân khu của đại đô thị Vinhomes Global Gate Hạ Long (hay còn gọi lại Hạ Long Xanh) bao gồm: Phân khu châu Mỹ, phân khu Châu Á, phân khu Châu Âu, phân khu Kỳ Quan Mới, phân khu Châu Úc.

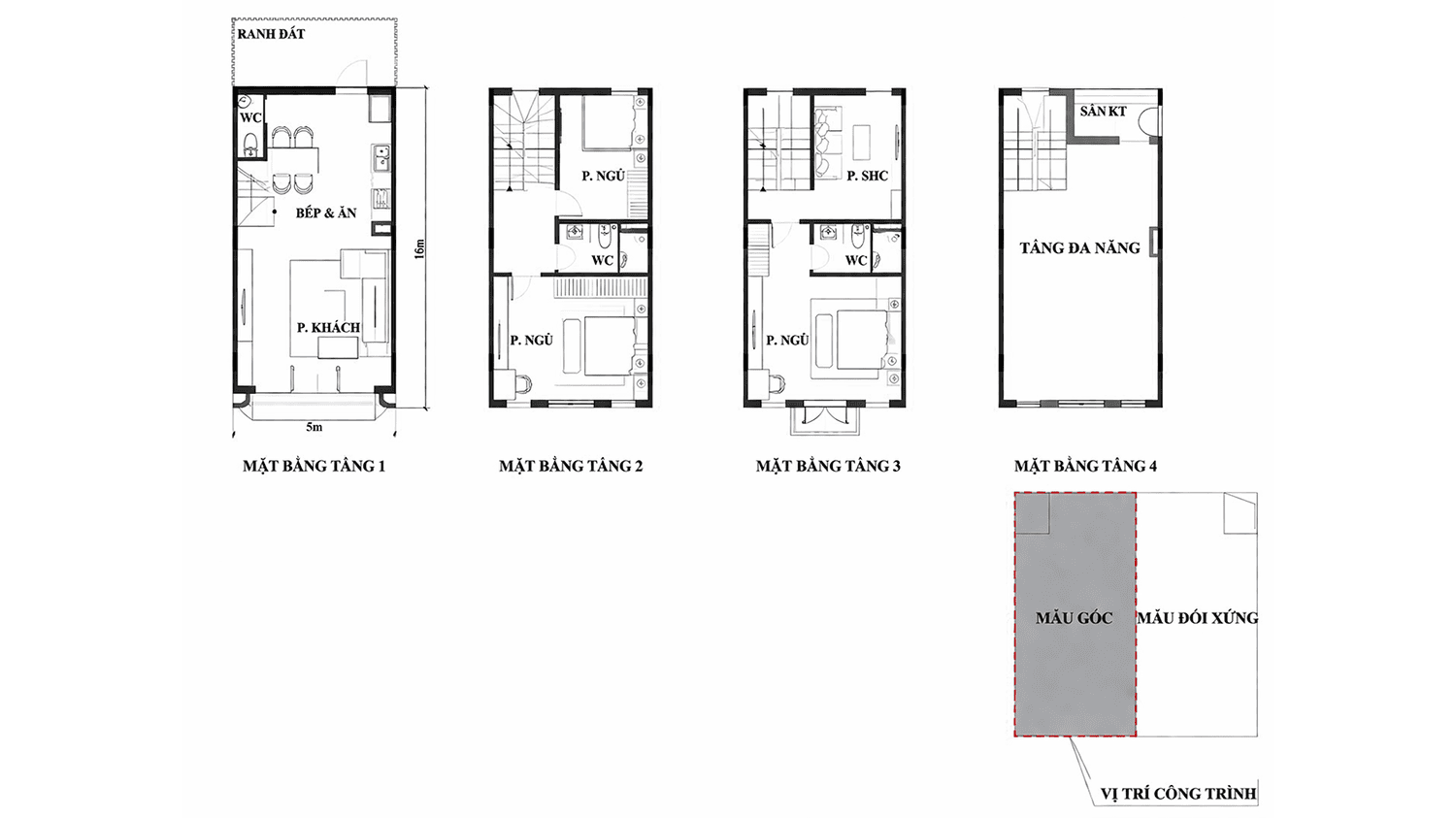
Mẫu nhà liền kề 60m2 phân khu Châu Mỹ – Vinhomes Global Gate Hạ Long
Mẫu nhà liền kề 60m2 phân khu châu Mỹ mặt tiền 5m, diện tích 5×12 (m) được thiết kế theo kiến trúc mỹ cổ điển và tân cổ điển. Thiết kế căn bao gồm 4 tâng với tổng diện tích sàn xây dựng 196 m2, chi tiết như sau:
- Tầng 1: Bao gồm phòng khách và bếp ăn, diện tích sàn 47,9 m2
- Tầng 2: Bao gồm 2 phòng ngủ + 1 vệ sinh, diện tích sàn 50 m2
- Tầng 3: Bao gồm 01 phòng ngủ + 01 phòng sinh hoạt chung + 01 vệ sinh, diện tích sàn 52,2 m2
- Tâng 4: Tầng đa năng diện tích 45,9 m2

Mẫu nhà liền kề 60m2 phân khu Châu Mỹ dành cho ai?
Mẫu nhà liền kề 60m2 – Vinhomes Global Gate Hạ Long được quy hoạch số lượng căn lớn nhất hướng tới khách hàng số đông với ngân sách đầu tư xoay quanh 5 tỷ. Mẫu căn này phù hợp với các gia đình trẻ, nhu cầu sinh hoạt với không gian phù hợp với cặp vợ chồng và con cái.

Giá nhà liền kề 60m2 – Vinhomes Global Gate Hạ Long
Hiện tại, giá mẫu nhà liền kề 60m2 phân khu châu Mỹ chưa được công bố chính thức, tuy nhiên theo dự kiến, đầu tháng 05/2026 sẽ mở bán đợt đầu tiên. Kèm theo đó là các chương trình bán hàng và ưu đãi vô cùng hấp dẫn từ chủ đầu tư.
Đặc biệt, VinGroup đưa ra chương trình hỗ trợ lãi suất trong bối cảnh chính sách thắt chặt lãi suất dẫn đến lãi vay cao như hiện nay. Tham khảo chương trình hỗ trợ lãi suấy của VinGroup tại đây:
Vị trí phân khu Châu Mỹ – Vinhomes Global Gate Hạ Long
Phân khu châu Mỹ: Phân khu này bao gồm phần diện tích khu vực Đại Yên – Quảng Ninh bám dọc theo quốc lộ 18A, mặt hướng biển quay ra Vịnh Hạ Long và đảo Tuần Châu. Phân khu này nổi bật với nhiều cơ sở hạ tẩng điểm nhấn của đại đô thị như: Công viên rừng 662ha; Không gian depot Ga rừng của tuyến tàu điện cao tốc Hà Nội – Hạ Long diện tích 73ha; Tổ hợp 12 sân Golf 950ha…

Các tiểu khu bên trong phân khu Châu Mỹ – Vinhomes Global Gate Hạ Long
Phân khu Châu Mỹ – Vinhomes Global Gate Hạ Long được quy hoạch thành 09 tiểu khu với phong cách thiết kế không gian sống hiện đại theo phong cách nhiệt đới – hiện đại kiểu Mỹ, các tiểu khu bao gồm:
- Vịnh San Hô: ½ Vịnh San Hô kết thúc san lấp và thi công 05/2026. Giai đoạn thi công 05/2026-08/2027. ½ còn lại xây dựng hạ tầng kết thúc phục vụ bán hàng 11/2026
- Vịnh Ánh Dương: Kết thúc san lấp 25/01/2026 – Kết thúc thi công 02/10/2026 – Thời gian thi công từ 05/2026 – 08/2027
- Vịnh Hải Đăng: Tất cả các nhà thấp tầng, bán theo phương án giãn xây 24 tháng, thời gian hoàn thiện mặt bằng 05/2026.
- Vịnh Nắng Hạ: Kết thúc san lấp 15/3/2026, chưa có thời gian kết thúc thi công.
- Vịnh Biển Xanh: Giãn xây 02 năm, thời gian hoàn thiện 11/2026
- Vịnh Nhiệt Đới: Tất cả các nhà thấp tầng, bán theo phương án giãn xây 24 tháng, thời gian hoàn thiện mặt bằng 05/2026
- Vịnh Thiên Đường: Tất cả các nhà thấp tầng, bán theo phương án giãn xây 24 tháng, thời gian hoàn thiện mặt bằng 05/2026
- Vịnh Lam Ngọc: Tất cả các nhà thấp tầng, bán theo phương án giãn xây 24 tháng, thời gian hoàn thiện mặt bằng 05/2026
- Vịnh Ngọc Trai: Tất cả các nhà thấp tầng, bán theo phương án giãn xây 24 tháng, thời gian hoàn thiện mặt bằng 05/2026

Quy mô phân khu Châu Mỹ – Vinhomes Global Gate Hạ Long
Toàn bộ phân khu Châu Mỹ được quy hoạch trên diện tích 935ha với tổng số căn là 15.139 căn, chi tiết như sau:
- 314 căn biệt thự liền kề
- 334 căn biệt thự song lập
- 221 căn dinh thự
- 491 căn đơn lập
Phân bổ quỹ căn tại các tiểu khu như sau:
- Vịnh Nhiệt đới: 882 căn
- Vịnh Ngọc Trai: 650 căn
- Vịnh Thiên Đường: 2.347 căn
- Vịnh Nắng Hạ: 1.975 căn
- Vịnh Lam Ngọc: 383 căn
- Vịnh Ánh Dương: 2.343 căn
- Vịnh San Hô: 2.590 căn
- Vịnh Biển Xanh: 2.175 căn
- Vịnh Hải Đăng: 2015 căn




